--   |  设为首页

帮忙装修网

中山

[切换]

中山装修138㎡四房,全屋实木清新舒适大方

来自:中山帮忙装修网 日期:2022-07-26 09:51:59 210287 次 分享到:
导读:
男主人喜欢乐高玩具,女主人讲究风水,希望室内布局有改善。中山帮忙装修网公司分享优秀案例。

20220725_141423_301.jpg

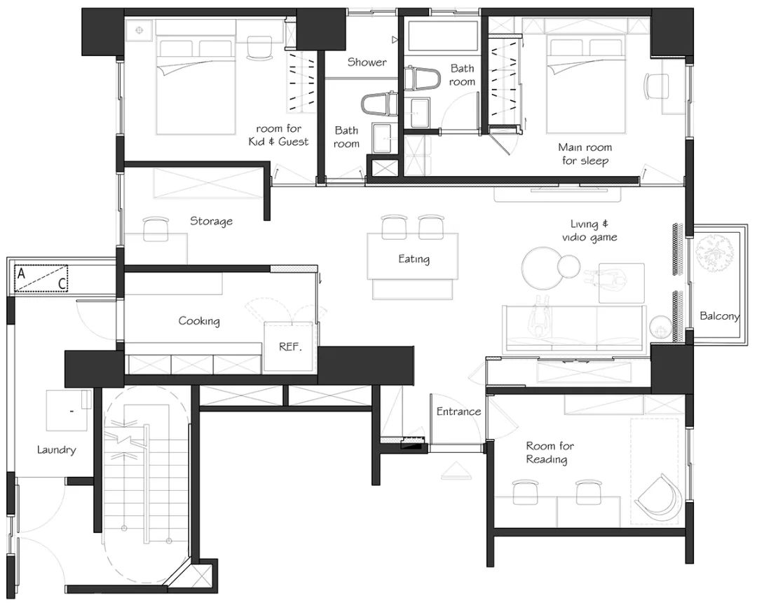
今天中山帮忙装修网公司分享的案例,男主人喜欢乐高玩具,女主人讲究风水,希望室内布局有改善。

房屋信息:

房屋面积:使用面积92㎡

房屋户型:4房2厅2卫

常住人口:2大人

20220725_141423_302.jpg

玄关:

简约的分段式悬空鞋柜,开启了整个家的世界。

20220725_141423_303.jpg

客厅:

客厅简约大方,电视墙只做了一个隔板,摆放电视和相关设备。

沙发后方是隐形墙,可随时开合,这样做解决了沙发上方的横梁。

墙后面是储藏间,白色角钢货架,可以摆放日常杂物,一旁的吊杆,用来挂衣服。

餐厅:

屋主夫妻热情好客,喜欢下厨,所以餐厅用一张宽敞的实木餐桌,便于招待亲友。

20220725_141423_309.jpg

白墙上方加装挂画轨道,挂上男主人收藏已久的画作,让居家空间更显屋主个性。

20220725_141423_312.jpg

厨房:

厨房正对阳台,风水上称之为穿堂煞,同时考虑到屋主喜欢爆炒的习惯,在厨房半开放的料理区增加了一扇玻璃滑门。

厨房向储藏间的方向扩充了一部分,增加了烹饪区。

靠墙位置做一字型备餐台,下方橱柜留开放式格子,大小家电都可以收纳在这。

20220725_141423_315.jpg

20220725_141423_316.jpg

主卧:

木地板上墙做半墙床头护墙板,两侧做成嵌入式的壁龛,比床头柜更节约空间。

卫生间门口右侧的定制柜,可作为临时办公区,也可以当梳妆区。

蜂巢日夜遮光帘,满足白天和夜晚室内的各种采光需求。

客房:

客房现在给父母留宿用,考虑到以后作为儿童房,于是保留了空间的可变性。

只是用木纹饰面板包覆墙面, 并预留摆放书桌的空间,可以随着孩子年龄变化,满足各阶段所需。


装修预算不够?快来申请装修贷款!月息低至2.5厘。帮忙装修网为解决业主的装修资金难题,特与银行合作推出“装修贷”,一站轻松办理:18824725983 吴先生


长按二维码关注"帮忙装修网",了解更多装修资讯↓↓↓



或拨打免费热线:13822775923

已成功招标53521